Тому, кто полюбит и оценит этот дом очень повезет, потому что такие дома продают редко, строят для себя и лишь жизнь, внося свои коррективы, предоставляет Покупателям вот такие счастливые возможности.
Выполнен коттедж в уютной современной классике 480 м2, строили сами, было предусмотрено много верных решений относительно качества и долговечности, удачно расположен в охраняемом поселке рядом с чудесным пляжем и рыбалкой, в живописном санаторном районе, который назвается Русской Швейцарией, на правильном удалении от столицы, где чистый воздух и грибы!
Дом построен профессионально из поризованного кирпича Rothenberger (стены 63 см), облицовка -немецкий еврокирпич.
В доме использованы 45-е углы, что делает интерьер более мягким и уютным, фундамент на монолитной плите, перекрытия ж/б, кровля - гибкая черепица, в отделке использованы исключительно натуральные материалы, каких сейчас на фоне обесценивающихся денег не найти (полы с подогревом, дубовая паркетная доска, техника NEFF в кухне, кондиционирование всех помещений). Уникальная планировка и потрясающая лестница - является украшением дома и это нужно именно увидеть!
Виды с балконов на закаты и шикарные вековые деревья - придают особую прелесть этой локации.
2 входа в дом: с крыльца, где оборудован навес для автомобилей, парковка вмещает 6 а/м плюс на 1 авто теплый гараж, и из столовой на террасу с креслом-гамаком в сторону зоны барбекю.
Цокольный этаж: спортзал, прачечная, котельная, сауна, хоз. помещения, комната для служащих с отдельным входом, два санузла.
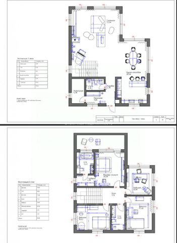
1 этаж: холл, кухня-столовая с выходом на террасу, каминный зал, комната для гостей, совмещенный санузел.
1,5 этаж: комната отдыха с цветами.
2 этаж: 4 комнаты, сан. узел с душевой кабиной, балкон.
2,5 этаж: комната спальня.
3 этаж: просторная мансарда с зонированием на чайную зону, музыкальный зал, игровая.
В доме продуманна вся инженерия, установлена погодозависимая автоматика на котле. Коммуникации: эл-во 21 кВт, магистральный газ - Котел Viessman, водопровод от своей скважины с системой водоочистки, имеется летний поселковый водопровод, септик Топаз, ТV - Триколор.
Участок поделен на 2 зоны: Садовая выровнена, выполнен дренаж почвы, засеян газоном, выложены дорожки, жасмин, туи, плодовые деревья: яблони, вишни, сливы, алыча, декоративные и ягодные кустарники, цветники; В лесной части построен гостевой домик, беседка с кухней, мангал, спортивный уголок, калитка в ухоженный лес прям с участка.
Инфраструктура в районе богатая, расскажу. Поселок благоустроенный с невысокой платой за обслуживание, что приятно!
Дом в идеальном состоянии, в нем почти не успели пожить, новому владельцу сэкономит ценное время и нервы. Порадуйте себя визитом в этот уютный и очень качественный дом! Приезжайте со специалистами, качество гарантируем!