Мы используем куки-файлы. Соглашение об использовании
Помещение свободного назначения, 671,3 м²

Продается помещение свободного назначения, 671,3 м²

Площадь671,3 м²
Этаж1 из 17
Отчёт о привлекательности объектаУзнайте, насколько помещение и район подходят для вашего бизнеса
Что входит в отчёт
  • Охват населения
  • Пешеходный трафик
  • Автомобильный трафик
  • Средний бюджет семьи по району
  • Арендные ставки рядом
  • Точки притяжения
  • Конкуренты в радиусе 1 км
  • Рекомендации по выбору места для бизнеса
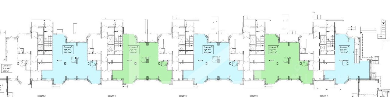
953614. Предлагаем торговые помещения в ЖК "Восточный", площадью 671.3 кв. м, расположенные на первом этаже 17-этажного жилого дома. Без комиссии для покупателя. Преимущества объекта: -ЖК состоит из 11 корпусов переменной этажности (от 14 до 17 этажей), рассчитанных на 3 153 квартиры; -7 минут на автомобиле от ж/д станции "Звенигород"; -удобная транспортная доступность: 2 км до ЦКАД, 3 км до Ратехинского шоссе, 3.5 км до Нахабинского и Ильинского шоссе, 4 км до Звенигородского шоссе, 4.7 км до Луцинского шоссе; -плотный жилой массив; -сложившееся торговое окружение (Улыбка Радуги, Здравсити, Буханка, Дикси и др); -высокий автомобильный и пешеходный трафик; -отлично просматривается, находится в легком доступе для потенциальных клиентов; -гибкая планировка, позволяющая использовать пространство под различные нужды; -10 мокрых точек; -вытяжка под общепит; -витринное остекление; -возможность размещения вывески; -зона погрузки/разгрузки; -наземная парковка; -территория не огорожена. Технические параметры объекта: -9 отдельных входных групп с фасада и 5 со двора; -площадь помещений: 1 помещение: 141.7 кв.м; 2 помещение: 143.6 кв.м; 3 помещение: 143.6 кв.м; 4 помещение: 141.7 кв.м; 5 помещение: 101.7 кв.м. -высота потолков: 4.2 м; -электрическая мощность: 150 кВт. Есть оферты от арендаторов: (ПВЗ Ozon, WB, Цветы, Аптека, Строительный магазин, Детский клуб, Салон красоты, Кофейня и др). Свяжитесь с нами для получения дополнительной информации!
lock

Войдите или зарегистрируйтесь
для просмотра информации

Просматривайте условия сделки и всю информацию об объекте
Сохраняйте фильтры в поиске и не вводите заново
Доступ к избранному с любого устройства
Неограниченное добавление в избранное
Позвоните автору
Вам ответят на все вопросы
Остались вопросы по объявлению?
Позвоните владельцу объявления и уточните необходимую информацию.
  • Инфраструктура
  • Похожие рядом
  • Тип зданияЖилой комплекс
  • Категория зданияДействующее
  • Общая площадь671,3 м²
Приточная вентиляция
Центральное кондиционирование
Центральное отопление
Помощь надёжных риелторов
Риелтор партнёр Циан поможет купить или продать любую недвижимость
167 825 000 ₽
2 241 235 $
1 911 946
Цена за метр
250 000 ₽
Налог
УСН
Агентство недвижимости
Документы проверены